Bilder für Daheim III

Auftraggeber

Verein Daheim e.V., Gütersloh

Projekt

Neubau einer Hausgemeinschaft und Tagespflegeeinrichtung
Hanfstraße 37
33428 Harsewinkel

Leistungen

Gestaltungskonzept und Bilder für Wohnbereiche und Flure

Entwurf und Realisierung

2017 bis 2018

Zwei Einrichtungen in einem Haus

In Marienfeld (Kreis Gütersloh) wurde für den Verein Daheim e.V. ein Neubau errichtet (Planung: Splietker Architektur und Bauen, Rheda-Wiedenbrück), der im Erdgeschoss eine Tagespflegeeinrichtung und mehrere eigenständige barrierefreie Wohnungen, im Obergeschoss eine Hausgemeinschaft für betreutes Wohnen mit 16 Wohneinheiten beherbergt.

Das große Bauvolumen wurde in 3 giebelständige Häuser aufgelöst, um es der örtlichen Maßstäblichkeit anzupassen. Funktional entwickelt sich das Raumprogramm um einen zentralen Erschließungskern. Großzügige Fensterflächen, Terrassen im Erdgeschoss und Balkone im Obergeschoss schaffen intensive Innen-Außen-Beziehungen.

Tagespflege im Erdgeschoss

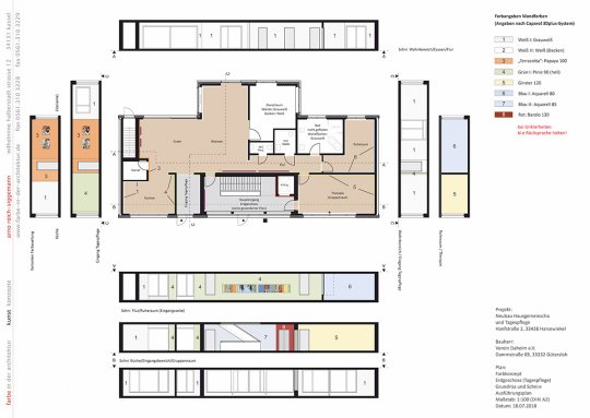
Die Aufgabe bestand wie bei den anderen gemeinsamen Projekten mit dem Träger der Einrichtungen darin, mit einem differenzierten Farbkonzept die räumliche Struktur besser erfahrbar zu machen und den wohnlichen Charakter der Aufenthaltsbereiche und Flur zu unterstützen. Darauf aufbauend sollte die Ausstattung mit Bildern zusätzliche Orientierungshilfen und visuelle Anregungen schaffen.

Wohnbereich und Flure

In der Tagespflege wurde der Wohnbereich mit farbigen Wandflächen betont, Bilder mit "Stillleben", die erneut (mit einem Augenzwinkern) Anleihen in der Kunstgeschichte nehmen, verweisen darauf, dass hier auch Mahlzeiten eingenommen werden.

Flure werden bei der Gestaltung gerne vernachlässigt, dabei sind sie ein wesentlicher Faktor für die Aufenthaltsqualität. Der über 6 Meter lange Figurenfries greift das Raumgeschehen in verdichteter Form auf, und lädt angesichts der unterschiedlichen dargestellten Charaktere zum Betrachten ein.

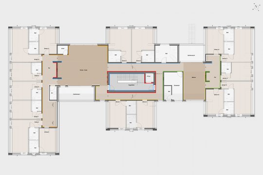
Hausgemeinschaft

Zwei Gemeinschaftsbereiche werden durch den zentralen Erschließungsblock voneinander getrennt. Auf der Westseite befindet sich ein großer Wohn- und Essbereich mit Küche, auf der Ostseite ein zusätzliches Wohnzimmer, das durch das Farbthema "Grün" mit passendem Bildmotiv eine eigene Identität bekommen hat.

Um diese räumliche Trennung aufzuheben, wurde mit Hilfe der Farbgebung ein starkes Zentrum geschaffen. Das thematisch einheitliche, trotzdem abwechslungsreiche Bildprogramm mit unterschiedlichen Landschaftstypen sorgt für Abwechslung. Letzteres hat den zusätzlichen Effekt, dass man immer, wenn man aus einem Bewohnerzimmer kommt, auf individuelle Bildmotive schaut.

Der "gefühlt" etwas abseits liegende, westliche Flur hat eine thematisch eigenständige Bildreihe erhalten, die lange Flurachse in Richtung Osten wurde durch ein großes Figurenbild aufgewertet.

Treppenhaus

Das Treppenhaus ist durch seine bauliche Abtrennung (vor allem aus Brandschutzgründen) sehr funktional und nüchtern angelegt. Da es den einzigen Zugang zur Hausgemeinschaft bietet, bestand der Anspruch, ihm eine größere Aufenthaltsqualität zu verleihen. Figurenbilder begleiten die BesucherInnen nun vom Erdgeschoss ins (abgesehen von einem Oberlicht) fensterlose Obergeschoss.
Dort befindet sich an der Längswand ein 6,60 m langer Landschaftsfries, der als "virtuelles Fenster" die fehlende reale Aussicht ein Stück weit kompensieren soll, wobei typische Elemente der Landschaft der Umgebung aufgegriffen wurden.